Welkom, bij Hofje van Holtlant 30
2352 GE, Leiderdorp
€640.000 K.K.















































Wat maakt deze woning uniek?
Wonen in het Hofje van Holtlant 30 in Leiderdorp, een tussenwoning met luxe, energielabel A, moderne keuken en sanitair en eigenlijk zo te betrekken.
Het Hofje van Holtlant ligt in de kleine wijk Elisabethhof. De wijk staat bekend om haar rustige, ruim opgezette straten, in dit geval ook nog eens autovrije straat, het vele groen en de kindvriendelijke opzet. Je woont hier in een modern gedeelte van het dorp, met een mix van jonge gezinnen, starters en doorstromers die allemaal dezelfde dingen waarderen: comfort, veiligheid en een prettige lee
Samengevat
Type
Huis
Bouwjaar
2017
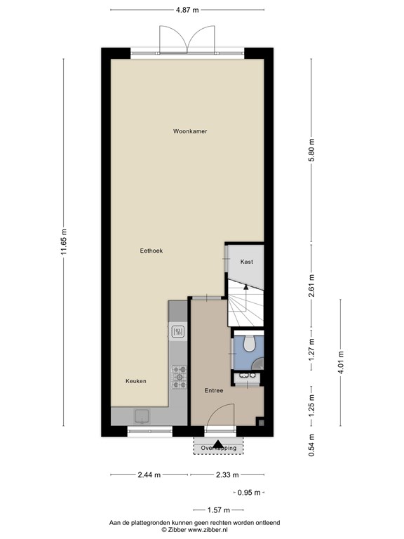
Wonen
135 m²
Perceel
108 m²
Kamers
5
Slaapkamers
4
Bekijk alle kenmerken van deze woning
Overdracht
Vraagprijs€640.000 K.K.
Vraagprijs per m²€4.740,74
StatusBeschikbaar
AanvaardingIn overleg
Bouwjaar
Soort woningEengezinswoning, Tussenwoning
Bouwjaar2017
Waar kom ik straks te wonen?
Loading Map…
Hoe duurzaam is deze woning?
Deze woning heeft energielabel: A
Goed nieuws, deze woning is zeer energiezuinig! Woningen krijgen een label A wanneer deze optimaal geïsoleerd zijn, over zonnepanelen beschikken, of verwarmd worden door een duurzame installaties zoals een warmtepomp. Het label A is meestal terug te vinden bij nieuwbouwwoningen, of reeds verbouwde woningen.
Type isolatieDakisolatie, Muurisolatie, insulationType.FloorInsulation, Volledig geïsoleerd, Spouwmuurisolatie, Dubbel glas, HR-glas
VerwarmingsinstallatieWaterverwarmer, heating.AirConditioning, Gedeeltelijk vloerverwarming, heating.HeatRecoveryInstallation
Warm waterWaterverwarmer
Energielabel geldig tot06-05-2027
Hoe werkt het verkoopproces?
Stap 1: Bekijk de woning
Al geïnteresseerd in deze woning? Plan direct een bezichtiging via de onderstaande knop.
Plan een bezichtigingBestudeer de stukken
Plaats een bod
Gunning
Vrijgave Biedlogboek
Stap 2: de stukken bestuderen
Voorafgaand aan de bezichtiging is het aan te raden om alle stukken goed te bestuderen als onderdeel van de onderzoeksplicht.

Stap 3: een bod uitbrengen
Is dit de volgende droomwoning? Breng dan eenvoudig digitaal een bod uit in het Biedlogboek van Eerlijk Bieden

Veelgestelde vragen
Wanneer kan de notariële overdracht van Hofje van Holtlant 30 plaatsvinden?
De verkopers van Hofje van Holtlant 30 hebben de volgende voorkeur voor notariële overdracht aangegeven: 2026-05-14t00:00:00.000z.
Is er parkeergelegenheid in de buurt van Hofje van Holtlant 30?
In de buurt van Hofje van Holtlant 30 zijn de volgende parkeermogelijkheden beschikbaar: Openbare parkeerplaats.
Contact met de makelaar

Obèr Makelaardij
Vragen aan de makelaar over dit pand of wilt u direct een bezichtiging plannen? Gebruik dan het bijgevoegde contactformulier.
Hoe kunnen wij u van dienst zijn?
Misschien vindt u deze woningen ook interessant?
Raaphorst
2352 KK Leiderdorp

Hubrechtstraat
2351 SC Leiderdorp
€450.000 K.K.

Spieghelstraat
2332 BD Leiden
€795.000 K.K.

